6 stanza appartamento a Firenze
-
Area
- 130 m²
-
Tipo di proprietà
- Appartamento
-
Stanze
- 6 stanze
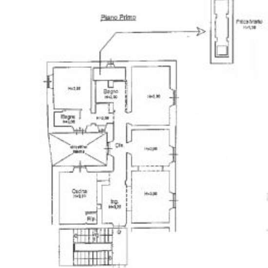
Nei pressi del Lungarno Soderini, all'altezza del Ponte Vespucci, elegante appartamento completamente ristrutturato, situato in palazzo ottocentesco, in una delle zone residenziali più prestigiose del centro storico fiorentino. L'appartamento di circa 130mq, disposto su un unico livello, è ubicato al primo piano del palazzo ed è dotato di ascensore. L'ingresso si apre su un ampio e luminoso soggiorno doppio in cui si trova anche la sala da pranzo, separata da una parete ad arco. La cucina abitabile ed attrezzata, dotata di comodo ripostiglio...
- Affitto
- 4.500 € al mese
- Posizione
- 50124, Firenze
- Periodo di affitto
- -
- Proprietario verificato
- Sì
- Data
- 5 giorni fa
- Disponibile
- Contatta il proprietario
- Utenze
- Contatta il proprietario
- Deposito
- Contatta il proprietario
- Affitto anticipato
- Contatta il proprietario
Posizione