6 stanza appartamento a Firenze
-
Area
- 118 m²
-
Tipo di proprietà
- Appartamento
-
Stanze
- 6 stanze
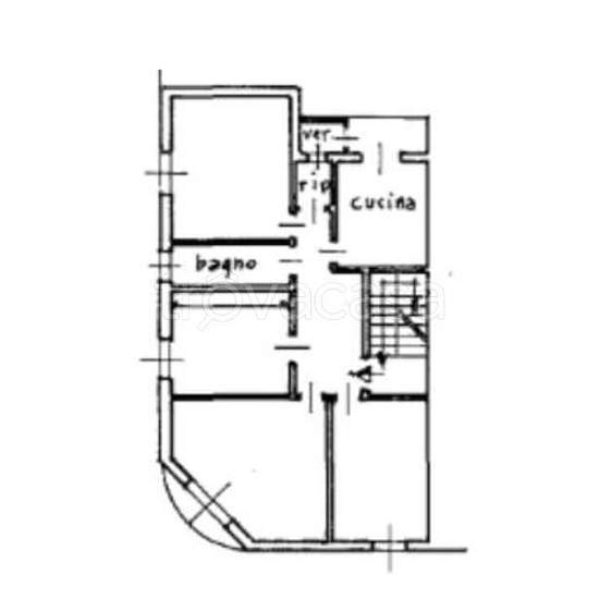
A pochi passi dalla Manifattura Tabacchi e dalla sede del Polimoda proponiamo la locazione di un grande appartamento di circa 120 mq posto al primo piano senza ascensore di una palazzina degli anni trenta. La casa è composta da 4 grandi camere da letto, 1 tripla, 2 matrimoniali ed una singola. Completa la casa una bella cucina abitabile,un bagno finestrato con doccia ed un ripostiglio. Le spese condominiali sono di circa 50 € mensili. Le utenze sono a parte ed è presente anche il collegamento wi-fi. Il deposito cauzionale è di due mensilità ...
- Affitto
- 2.900 € al mese
- Posizione
- 50144, Firenze
- Periodo di affitto
- -
- Proprietario verificato
- Sì
- Data
- 12 giorni fa
- Disponibile
- Contatta il proprietario
- Utenze
- Contatta il proprietario
- Deposito
- Contatta il proprietario
- Affitto anticipato
- Contatta il proprietario
Posizione