6 stanza appartamento a Taranto
-
Area
- 167 m²
-
Tipo di proprietà
- Appartamento
-
Stanze
- 6 stanze
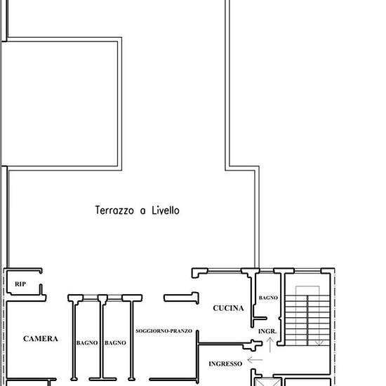
In zona altamente commerciale, ben collegata e con ogni servizio sotto casa: supermercati, farmacie, negozi, proponiamo in locazione un ampio appartamento di 167 mq al primo piano, perfetto per chi cerca spazi generosi e una posizione comoda e ben servita. Composizione: • Doppio ingresso • Salone doppio con balcone su Via Liguria • Tre camere da letto • Cucina abitabile con zona pranzo • Tre bagni • Due ripostigli • Ampio terrazzo interno di 190 mq, ideale per vivere momenti all'aperto in piena privacy • Riscaldamento autonomo • Porta blinda...
- Affitto
- 850 € al mese
- Posizione
- 74121, Taranto
- Periodo di affitto
- -
- Proprietario verificato
- Sì
- Data
- 31 giorni fa
- Disponibile
- Contatta il proprietario
- Utenze
- Contatta il proprietario
- Deposito
- Contatta il proprietario
- Affitto anticipato
- Contatta il proprietario
Posizione