7 stanza appartamento a Firenze
-
Area
- 217 m²
-
Tipo di proprietà
- Appartamento
-
Stanze
- 7 stanze
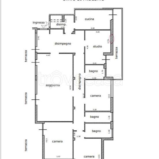
Piazza edison (pressi) attico 190 mq (sul) con terrazze vivibili (90 mq) al 3 ed ultimo piano con ascensore. Completamente ristrutturato . Completo di box Auto e cantina. Disponibile dal 1 dicembre. L'appartamento fa parte di un complesso residenziale completamente recintato. Si accede da cancello pedonale, oppure tramite passo carrabile con cancello ad apertura elettrica. L'immobile è dotato di un grande resede condominiale giardino L'attico si raggiunge al 3 piano con ascensore. Disposizione Interna: Zona giorno - ampio ingresso - soggiorn...
- Affitto
- 3.200 € al mese
- Posizione
- 50133, Firenze
- Periodo di affitto
- -
- Proprietario verificato
- Sì
- Data
- 30 giorni fa
- Disponibile
- Contatta il proprietario
- Utenze
- Contatta il proprietario
- Deposito
- Contatta il proprietario
- Affitto anticipato
- Contatta il proprietario
Posizione