7 stanza appartamento a San Felice Circeo
-
Area
- 171 m²
-
Tipo di proprietà
- Appartamento
-
Stanze
- 7 stanze
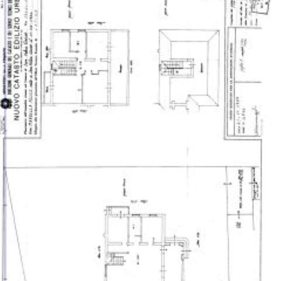
Vi proponiamo la locazione di una splendida villa unifamiliare. L'immobile, di tipo signorile è completamente arredato e può accogliere un totale di 7 o 8 ospiti. Si sviluppa su una superfice di circa 170 mq interni, suddivisi su 2 piani: al piano terra la zona giorno, con cucina completa anche di forno e lavastoviglie, salone doppio, studio (dove può all'occorrenza trovare posto l'ottavo letto) e un bagno finestrato con doccia. Al piano superiore, al quale sia accede con comoda scala interna, tutta la privacy della zona notte con 4 camere d...
- Affitto
- 5.000 € al mese
- Posizione
- 04017, San Felice Circeo
- Periodo di affitto
- -
- Proprietario verificato
- Sì
- Data
- 29 giorni fa
- Disponibile
- Contatta il proprietario
- Utenze
- Contatta il proprietario
- Deposito
- Contatta il proprietario
- Affitto anticipato
- Contatta il proprietario
Posizione