8 stanza appartamento a Besozzo
-
Area
- 410 m²
-
Tipo di proprietà
- Appartamento
-
Stanze
- 8 stanze
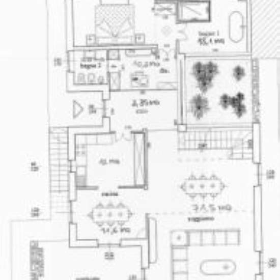
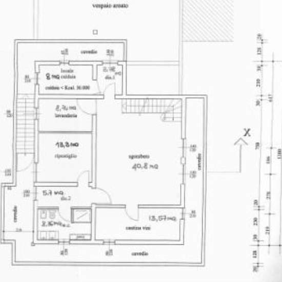
Besozzo (va) – Disponibile dal 01/09/2025, visitabile da subito. Sul Lago Maggiore, in località Bogno, proponiamo incantevole e prestigiosa villa in stile country british immersa nel verde e nella tranquillità. Distante ad un’ora di auto dal confine svizzero e da Milano, a pochi km da Malpensa, l’immobile, dotato di ampi spazi interni e rifiniture di pregio, si estende su tre livelli per 400 mq circa di superficie e rimane composto come segue: piano terra da ampio ingresso con vetrate che permettono la vista sul giardino d’inverno, ampio sal...
- Affitto
- 8.500 € al mese
- Posizione
- 21023, Besozzo
- Periodo di affitto
- -
- Proprietario verificato
- Sì
- Data
- 19 giorni fa
- Disponibile
- Contatta il proprietario
- Utenze
- Contatta il proprietario
- Deposito
- Contatta il proprietario
- Affitto anticipato
- Contatta il proprietario
Posizione