8 stanza appartamento a Roma
-
Area
- 240 m²
-
Tipo di proprietà
- Appartamento
-
Stanze
- 8 stanze
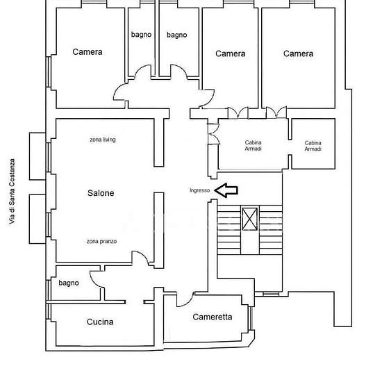
In Via Santa Costanza, proponiamo in locazione un elegante appartamento di circa 230 mq, posto al quinto piano di un signorile stabile con ascensore. La proprietà è caratterizzata da ambienti ampi, luminosi e ben distribuiti, ideali per chi cerca una comoda residenza in una delle zone più richieste di Roma. L'appartamento si apre su un ampio ingresso che conduce a un Salone doppio, suddiviso in zona living e zona pranzo, perfetto per ricevere ospiti. La zona notte offre 3 comode Camere da letto, 1 Cameretta/Studio, 3 bagni e due spaziosi amb...
- Affitto
- 3.400 € al mese
- Posizione
- 00198, Roma
- Periodo di affitto
- -
- Proprietario verificato
- Sì
- Data
- Ieri
- Disponibile
- Contatta il proprietario
- Utenze
- Contatta il proprietario
- Deposito
- Contatta il proprietario
- Affitto anticipato
- Contatta il proprietario
Posizione