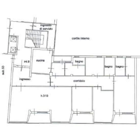
9 stanza appartamento a Napoli
-
Area
- 281 m²
-
Tipo di proprietà
- Appartamento
-
Stanze
- 9 stanze
La Via del Parco Grifeo non è una semplice via , è un luogo incantato . A mano a mano che si sale percorrono i tornanti che accarezzano la collina portandoci dal Corso Emanuele all'altezza del Parco Margherita fino all'altezza del Vomero , sembra di passeggiare in un tempo antico sommersi al contempo dallo spettacolo del mare e del golfo in genere che si spalanca sotto gli occhi del e che regala prospettive che ipnotizzano. Siamo nel Quartiere Chiaia , ma a metà strada verso il Quartiere Vomero . Le origini di questo luogo magico ricco di fa...
- Affitto
- 4.000 € al mese
- Posizione
- 80121, Napoli
- Periodo di affitto
- -
- Proprietario verificato
- Sì
- Data
- 31 giorni fa
- Disponibile
- Contatta il proprietario
- Utenze
- Contatta il proprietario
- Deposito
- Contatta il proprietario
- Affitto anticipato
- Contatta il proprietario
Posizione