2 room apartment in Bergamo
-
Area
- 50 m²
-
Property type
- Apartment
-
Rooms
- 2 rooms
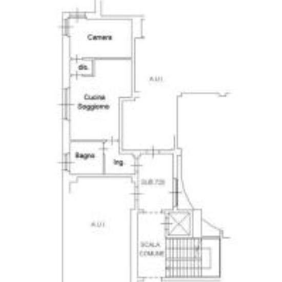
Sei alla ricerca di una sistemazione temporanea? Ti trasferisci in città’ per lavoro o studio? Abbiamo la soluzione giusta per te! Descrizione: Bilocale composto da zona pranzo con angolo cottura, bagno, zona living/conversazione e camera da letto. Gestore: Gestito da “la moderna servizi”, un’azienda specializzata in property management. Offre un supporto completo durante la tua permanenza attraverso servizi personalizzati per rendere il soggiorno unico e confortevole. Dettagli: - Capienza:fino a 2 occupanti - Permanenza minima: 30 giorni - ...
- Rent
- €1,300 per month
- Location
- 24128, Bergamo
- Rental period
- -
- Verified landlord
- Yes
- Date
- 10 days ago
- Available
- Contact landlord
- Utilities
- Contact landlord
- Deposit
- Contact landlord
- Prepaid rent
- Contact landlord
Location