2 room apartment in Frabosa Sottana
-
Area
- 60 m²
-
Property type
- Apartment
-
Rooms
- 2 rooms
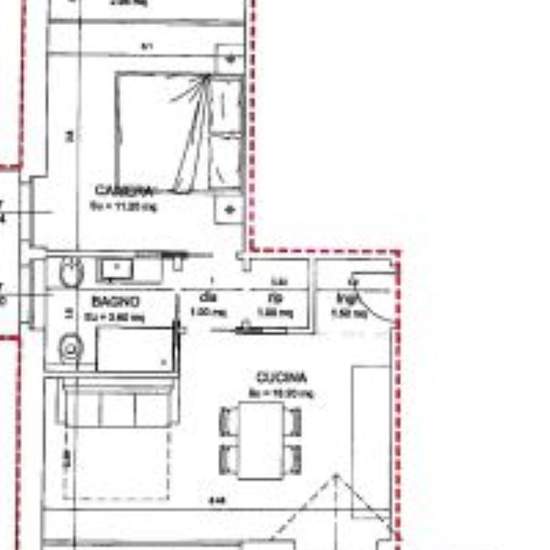
Rif: M15 - Se desideri un'abitazione che unisca modernità, efficienza energetica e una posizione esclusiva, questa è l'opportunità che stai cercando! Situato nel cuore di Miroglio, a pochi minuti dalle famose piste sciistiche di Prato Nevoso e Artesina, questo bilocale è la scelta ideale per chi cerca un perfetto equilibrio tra comfort, natura e accessibilità. La tempocasa di Mondovì propone in affitto in esclusiva : Bilocale composto da una zona giorno con angolo cottura, una camera da letto, un bagno e due balconi, che ti permetteranno di ...
- Rent
- €350 per month
- Location
- 12083, Frabosa Sottana
- Rental period
- -
- Verified landlord
- Yes
- Date
- 30 days ago
- Available
- Contact landlord
- Utilities
- Contact landlord
- Deposit
- Contact landlord
- Prepaid rent
- Contact landlord
Location