2 room apartment in Milan
-
Area
- 60 m²
-
Property type
- Apartment
-
Rooms
- 2 rooms
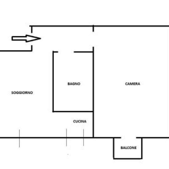
In gradevole e signorile palazzo con facciate in klinker, a circa 800 metri dalla nuova fermata della metropolitana M4 Gelsomini e M1 Primaticcio ed Inganni, la Qt8 Immobiliare propone in affitto appartamento completamente arredato e ristrutturato posto al sesto ed ultimo piano. L' appartamento è così meglio composto: ingresso, soggiorno, cucinotto, camera matrimoniale con balcone, bagno e ripostiglio in quota. Come si può notare dalle foto, l' immobile è in ottime condizioni grazie a recenti lavori di ristrutturazione. E' già provvisto di a...
- Rent
- €1,250 per month
- Location
- 20147, Milan
- Rental period
- -
- Verified landlord
- Yes
- Date
- Yesterday
- Available
- Contact landlord
- Utilities
- Contact landlord
- Deposit
- Contact landlord
- Prepaid rent
- Contact landlord
Location