2 room apartment in Turano Lodigiano
-
Area
- 58 m²
-
Property type
- Apartment
-
Rooms
- 2 rooms
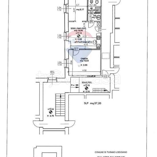
? In affitto – Appartamenti in Palazzo Storico a Turano Lodigiano (lo) All'interno del prestigioso Palazzo Calderari, elegante dimora storica completamente ristrutturata, proponiamo in locazione appartamenti posti al secondo piano (senza ascensore). Le unità abitative, non arredate ma in ottimo stato di manutenzione, sono dotate di riscaldamento autonomo e possibilità di posteggio all'esterno del Palazzo. Appartamento Interno 13 – Trilocale (57 m²) • Ingresso con angolo cottura • Camera matrimoniale • Camera singola/studio • Antibagno e bagn...
- Rent
- €420 per month
- Location
- 26828, Turano Lodigiano
- Rental period
- -
- Verified landlord
- Yes
- Date
- 31 days ago
- Available
- Contact landlord
- Utilities
- Contact landlord
- Deposit
- Contact landlord
- Prepaid rent
- Contact landlord
Location