2 room apartment in Turin
-
Area
- 58 m²
-
Property type
- Apartment
-
Rooms
- 2 rooms
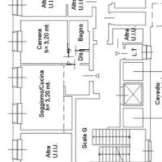
In via Lagrange 24, in una delle vie pedonali più esclusive di Torino, in affitto un elegante e lussuoso bilocale ristrutturato con materiali di pregio nel prestigioso palazzo ellen progettato da un noto studio di architettura e interior design torinese. L'appartamento, situato al quarto piano con ascensore è completamente e finemente arredato e si compone di: ingresso con soggiorno living con cucina a vista, camera da letto matrimoniale con servizio e disimpegno con ripostiglio e zona lavanderia. Al piano, vicino all'ingresso è presente un ...
- Rent
- €1,850 per month
- Location
- 10123, Turin
- Rental period
- -
- Verified landlord
- Yes
- Date
- 23 days ago
- Available
- Contact landlord
- Utilities
- Contact landlord
- Deposit
- Contact landlord
- Prepaid rent
- Contact landlord
Location