2 room house in Mareno Di Piave
-
Area
- 112 m²
-
Property type
- House
-
Rooms
- 2 rooms
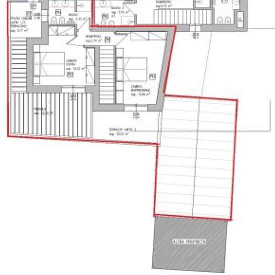
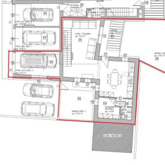
Da Gennaio 2026 si affitta casa singola a schiera a Mareno di Piave. Si compone di ampia zona giorno al piano terra con cucina e soggiorno, lavanderia e wc; al piano primo ci sono due camere matrimoniali, un bagno e un apio terrazzo. Completamente ammobiliata e con elettrodomestici (lavastoviglie, lavatrice, forno) è dotata di garage esclusivo per un'auto, nonché di un giardino fronte e retro. Sono presenti impianti autonomi per la climatizzazione sia invernale che estiva, impianto fotovoltaico. Sono in classe energetica A4 nzeb (a consumo q...
- Rent
- €1,250 per month
- Location
- 31010, Mareno Di Piave
- Rental period
- -
- Verified landlord
- Yes
- Date
- 30 days ago
- Available
- Contact landlord
- Utilities
- Contact landlord
- Deposit
- Contact landlord
- Prepaid rent
- Contact landlord
Location