3 room apartment in Forlì
-
Area
- 70 m²
-
Property type
- Apartment
-
Rooms
- 3 rooms
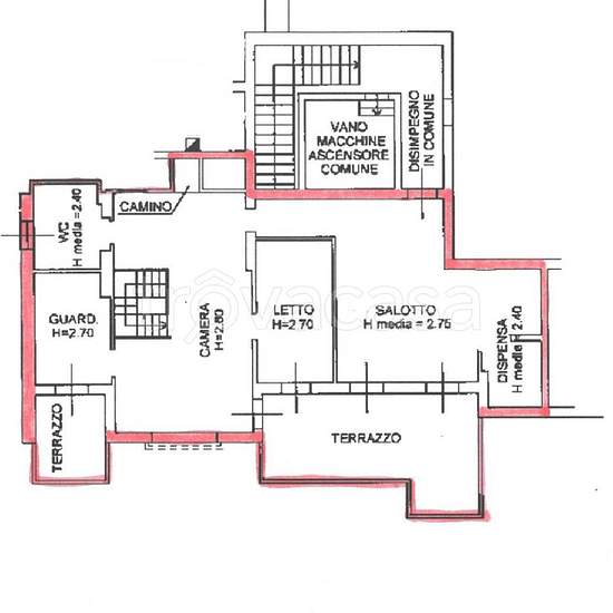
Centro storico/musei san domenico - contratti transitori max 18 mesi, no residenza - In grande contesto di condominio servito da ascensore, disponiamo di trilocale arredato come in foto. L'immobile è situato al terzo ed ultimo piano ed è così sviluppato: ingresso su luminosa zona giorno con angolo cottura e ampio terrazzo, la zona notte si compone di due camere da letto (matrimoniale e singola) e bagno, finestrato e con vasca. Aria Condizionata intero alloggio, stufa a pellet, infissi con doppi vetri. Spese condominiali comprensive del consu...
- Rent
- €700 per month
- Location
- 47121, Forlì
- Rental period
- -
- Verified landlord
- Yes
- Date
- 30 days ago
- Available
- Contact landlord
- Utilities
- Contact landlord
- Deposit
- Contact landlord
- Prepaid rent
- Contact landlord
Location