3 room apartment in Naples
-
Area
- 113 m²
-
Property type
- Apartment
-
Rooms
- 3 rooms
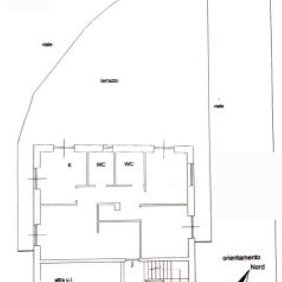
Appartamento panoramico in parco con posto auto Napoli in via Aniello Falcone lato alto zona Vomero, in un parco con ingresso anche da via Belvedere. Affittiamo ad uso transitorio 12-18 mesi, un appartamento arredato di 3 vani e accessori con vista panoramica su Capri, un terrazzo a livello grande attrezzato ed abitabile, e 1 posto auto assegnato scoperto nel parco. Internamente si compone di: un bel ingresso attrezzato con una struttura di design in legno molto funzionale che occupa anche parte del soggiorno e del disimpegno, una comoda e l...
- Rent
- €2,100 per month
- Location
- 80127, Naples
- Rental period
- -
- Verified landlord
- Yes
- Date
- 13 days ago
- Available
- Contact landlord
- Utilities
- Contact landlord
- Deposit
- Contact landlord
- Prepaid rent
- Contact landlord
Location