3 room apartment in Rome
-
Area
- 85 m²
-
Property type
- Apartment
-
Rooms
- 3 rooms
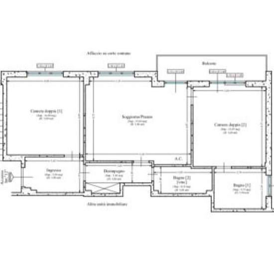
Battistini, adiacente ospedale Cristo Re e precisamente in via delle Calasanziane, proponiamo in locazione intero appartamento appena ristrutturato ed arredato. L'immobile si trova al terzo piano di un fabbricato in cortina e provvisto di ascensore ed è composto da ingresso, disimpegno, salone con cucina a vista, due camere da letto matrimoniali di cui una con bagno en suite, secondo bagno con ampia e comoda doccia, corridoio con armadio a muro, balcone. L'appartamento gode di un'ottima esposizione al sole che lo rende molto luminoso anche n...
- Rent
- €1,300 per month
- Location
- 00167, Rome
- Rental period
- -
- Verified landlord
- Yes
- Date
- 10 days ago
- Available
- Contact landlord
- Utilities
- Contact landlord
- Deposit
- Contact landlord
- Prepaid rent
- Contact landlord
Location