
3 room apartment in Venice
-
Area
- 80 m²
-
Property type
- Apartment
-
Rooms
- 3 rooms
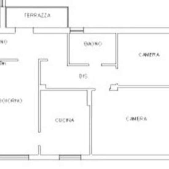
Viale San Marco Affittasi da inizio novembre appartamento già visitabile ma in fase di sistemazione (arredamento, pittura e pulizia) di 65 mq, 4° ed ultimo piano, costituito da ingresso, soggiorno, cucinotto, una camera doppia, una camera singola e servizio (si prega di guardare la planimetria). L’appartamento è molto luminoso ed il soggiorno e la camera doppia hanno un terrazzino. Nelle spese condominiali è incluso il riscaldamento centralizzato, radiatori con termovalvole per regolare il consumo. La zona, a pochi minuti dal centro di Mestr...
- Rent
- €1,000 per month
- Location
- 30173, Venice
- Rental period
- -
- Verified landlord
- Yes
- Date
- 21 days ago
- Available
- Contact landlord
- Utilities
- Contact landlord
- Deposit
- Contact landlord
- Prepaid rent
- Contact landlord
Location