3 room apartment in Vicenza
-
Area
- 90 m²
-
Property type
- Apartment
-
Rooms
- 3 rooms
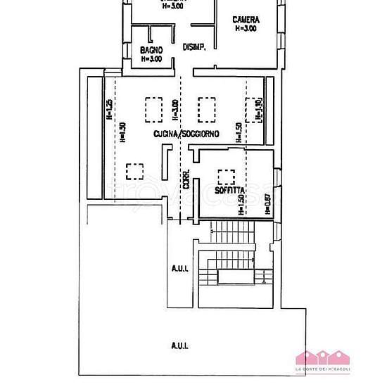
Centro storico - zona eretenia: all'interno di una prestigiosa villa liberty recentemente ristrutturata e composta di sole tre unità abitative, proponiamo un grazioso e luminoso bicamere mansardato ed arredato posto all'ultimo piano senza ascensore. Euro 1.000. Rif. 461. L'appartamento si compone di: ingresso, soggiorno/pranzo con angolo cottura, camera matrimoniale, camera singola adattabile anche a cabina armadio, studio e bagno finestrato con doccia. Travi a vista. Bellissima la vista sul giardino comune. Termo autonomo ed aria condiziona...
- Rent
- €1,000 per month
- Location
- 36100, Vicenza
- Rental period
- -
- Verified landlord
- Yes
- Date
- 9 days ago
- Available
- Contact landlord
- Utilities
- Contact landlord
- Deposit
- Contact landlord
- Prepaid rent
- Contact landlord
Location