4 room apartment in Florence
-
Area
- 80 m²
-
Property type
- Apartment
-
Rooms
- 4 rooms
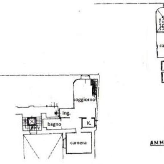
Corso tintori pressi, ad un passo dal Lungarno, in palazzo storico con portierato, al 1° piano con ascensore, luminoso appartamento su 2 livelli, composto da ingresso, ampio soggiorno, cucinotto, 2 camere, doppi servizi e ripostiglio. Ottimo stato, arredato, aria condizionata, ideale per studenti. Nel canone mensile sono comprese tutte le utenze e tutte le spese condominiali. Vicinissimo a Piazza Santa Croce, Piazza della Signoria, Duomo e Repubblica. Solo per referenziati. Libero da Settembre 2025. Agr Consulenti 388//
- Rent
- €1,600 per month
- Location
- 50122, Florence
- Rental period
- -
- Verified landlord
- Yes
- Date
- 13 days ago
- Available
- Contact landlord
- Utilities
- Contact landlord
- Deposit
- Contact landlord
- Prepaid rent
- Contact landlord
Location