4 room apartment in Florence
-
Area
- 100 m²
-
Property type
- Apartment
-
Rooms
- 4 rooms
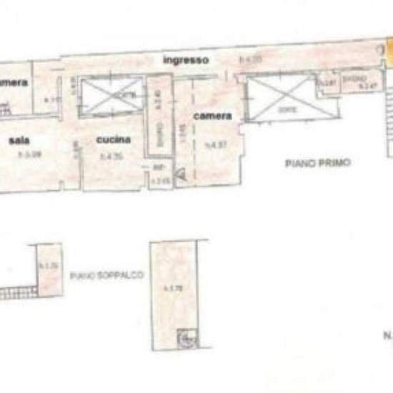
Piazza ss. annunziata pressi, nel cuore del Centro Storico, in signorile palazzo storico al 1° piano con ascensore, ampio e silenzioso appartamento composto da ingresso, soggiorno, cucina abitabile, 2 camere entrambe dotate di soppalchi con posti letto aggiuntivi, doppi servizi finestrati di cui uno nella camera principale, ripostiglio e balcone. Recentemente ristrutturato ed arredato, soffitti alti affrescati, travi a vista, aria condizionata. Gradevoli affacci nel verde su giardini interni. Facilmente raggiungibile dai Viali, vicinissimo a...
- Rent
- €2,150 per month
- Location
- 50121, Florence
- Rental period
- -
- Verified landlord
- Yes
- Date
- 9 days ago
- Available
- Contact landlord
- Utilities
- Contact landlord
- Deposit
- Contact landlord
- Prepaid rent
- Contact landlord
Location