4 room apartment in Podenzano
-
Area
- 110 m²
-
Property type
- Apartment
-
Rooms
- 4 rooms
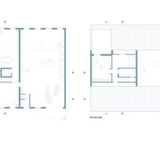
Casa Atelier – uno spazio da vivere, abitare e creare Nel cuore della campagna di Podenzano, un volume silenzioso si apre a chi cerca una casa che è anche rifugio, luogo di lavoro, spazio di pensiero. Casa Atelier è un’abitazione-loft di 110 m², parte di un progetto architettonico di raffinata essenzialità, dove linee pure, materiali crudi e pieni di memoria, e una distribuzione fluida si fondono in un gesto unico e misurato. Al piano terra, uno spazio aperto e continuo accoglie la zona giorno: cucina, sala e salotto si rincorrono senza barr...
- Rent
- €1,100 per month
- Location
- 29027, Podenzano
- Rental period
- -
- Verified landlord
- Yes
- Date
- 20 days ago
- Available
- Contact landlord
- Utilities
- Contact landlord
- Deposit
- Contact landlord
- Prepaid rent
- Contact landlord
Location