4 room house in Lentate Sul Seveso
-
Area
- 260 m²
-
Property type
- House
-
Rooms
- 4 rooms
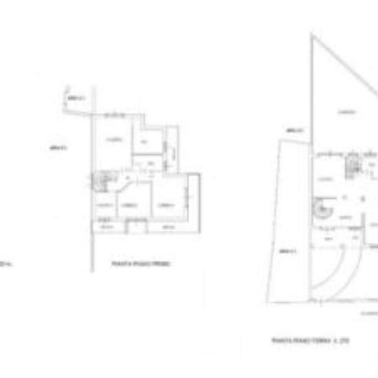
In posizione centrale e ben servita villa singola completamente ristrutturata di 250 mq. Composta da: ingresso, salone, sala da pranzo, cucina, bagno e porticati al piano terreno. Camera matrimoniale con sala da bagno, 2 comode camere, bagno e lavanderia al piano primo. Cantina di 50 mq. Giardino privato di 300 mq. Finiture di alto livello, pavimento in legno a listoni. Cucina arredata. Solo a referenziati. Si richiede fideiussione. Classe energetica: c – ipe 67,25 kwh/mq.A. Libera subito. La villa non è dotata di box e verrà consegnata non ...
- Rent
- €1,900 per month
- Location
- 20823, Lentate Sul Seveso
- Rental period
- -
- Verified landlord
- Yes
- Date
- 8 days ago
- Available
- Contact landlord
- Utilities
- Contact landlord
- Deposit
- Contact landlord
- Prepaid rent
- Contact landlord
Location