5 room apartment in Milan
-
Area
- 190 m²
-
Property type
- Apartment
-
Rooms
- 5 rooms
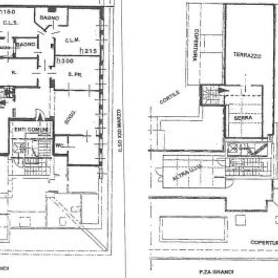
Gvr1599 - Piazza Grandi - Ampia abitazione dagli affacci luminosi e panoramici. All’ultimo quinto piano di un palazzo d’epoca con affacci panoramici sulla città, uno scenografico appartamento di 190mq si muove tra il quinto e il sesto piano con una planimetria moderna ed una luminosità meravigliosa. L’ingresso dal quinto piano accoglie e disimpegna gli spazi aprendosi sulla zona giorno con un soggiorno comunicante con la sala da pranzo e posta accanto alla cucina abitabile con piccolo terrazzino. Di fronte si apre un disimpegno dal quale pre...
- Rent
- €3,000 per month
- Location
- 20135, Milan
- Rental period
- -
- Verified landlord
- Yes
- Date
- 32 days ago
- Available
- Contact landlord
- Utilities
- Contact landlord
- Deposit
- Contact landlord
- Prepaid rent
- Contact landlord
Location