5 room apartment in Palermo
-
Area
- 162 m²
-
Property type
- Apartment
-
Rooms
- 5 rooms
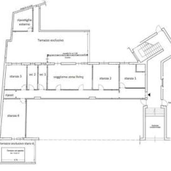
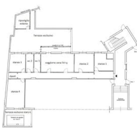
Via guadagna, zona policlinico-oreto 4 camere da letto, cucina soggiorno, 2 wc, ripostiglio e terrazzo Si loca solamente a lavortori/trici o studenti/esse fuori sede (residenza fuori palermo) L'immobile è posto al piano rialzato dello stabile degli anni 60 costituito da 7 piani. Il prospetto ed il vano scala è in ottime condizioni. Internamente l'immobile è composto da ingresso, 4 camere da letto, di cui una con accesso su terrazzo e 3 con finestra, cucina soggiorno unico ambiente ed ha accesso su un ampio terrazzo, sono presenti 2 bagni uno...
- Rent
- €1,300 per month
- Location
- 90124, Palermo
- Rental period
- -
- Verified landlord
- Yes
- Date
- 3 days ago
- Available
- Contact landlord
- Utilities
- Contact landlord
- Deposit
- Contact landlord
- Prepaid rent
- Contact landlord
Location