6 room apartment in Vicenza
-
Area
- 300 m²
-
Property type
- Apartment
-
Rooms
- 6 rooms
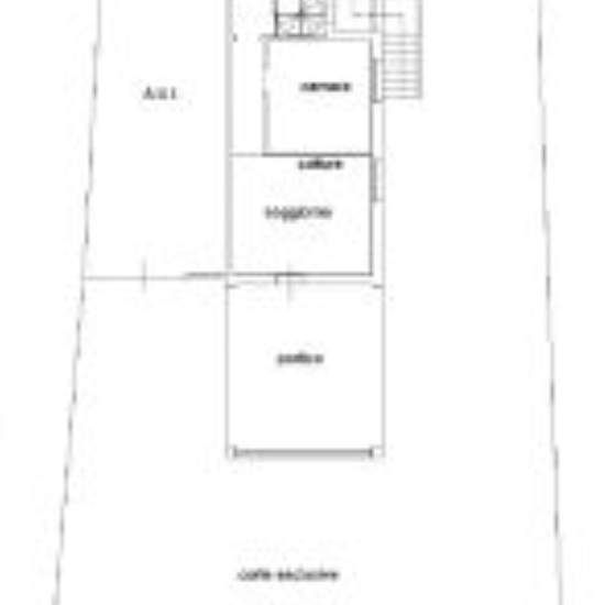
San pio X: singola con giardino recintato, tre livelli, ingresso, soggiorno con camino, cucina arredata, 4 camere 3 bagni, taverna, sala giochi, lavanderia, ampio garage. Aria condizionata. Rif. 2186X richiesta 2.400 euro San Pio X in posizione comodissima a tutti i servizi, zona silenziosa ed appartata, singola ristrutturata nel 1998 e sempre ben mantenuta, distribuita su tre livelli. Al piano terra con ingresso indipendente un soggiorno con angolo cottura in diretto contatto con un portico affacciato sul giardinetto, una camera ed un bagno...
- Rent
- €2,400 per month
- Location
- 36100, Vicenza
- Rental period
- -
- Verified landlord
- Yes
- Date
- Yesterday
- Available
- Contact landlord
- Utilities
- Contact landlord
- Deposit
- Contact landlord
- Prepaid rent
- Contact landlord
Location