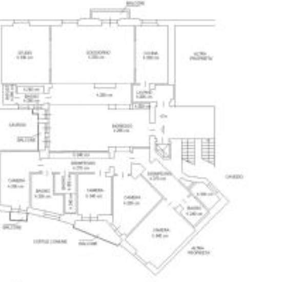
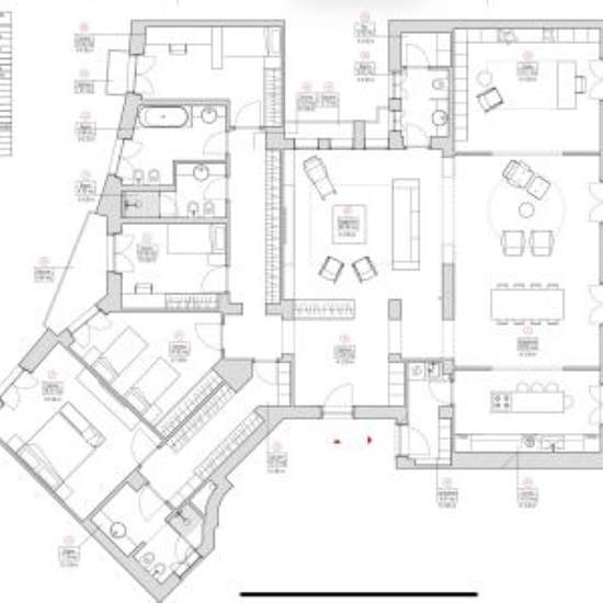
7 room apartment in Milan
-
Area
- 273 m²
-
Property type
- Apartment
-
Rooms
- 7 rooms
In via Domenico Scarlatti 30, all’angolo con via Mauro Macchi, sorge un elegante palazzo del 1933, in perfette condizioni grazie all’accurata manutenzione di facciate e impianti di cui è stato fatto oggetto negli ultimi anni. Le linee razionaliste che lo contraddistinguono generano nelle parti comuni ampi spazi di grande respiro, che anticipano fin dall’ingresso nello stabile la stessa scansione ripetuta poi nell’immobile che proponiamo in esclusiva in locazione. L’appartamento, al secondo piano del palazzo, ha una felice pianta che rende be...
- Rent
- €5,800 per month
- Location
- 20124, Milan
- Rental period
- -
- Verified landlord
- Yes
- Date
- 3 days ago
- Available
- Contact landlord
- Utilities
- Contact landlord
- Deposit
- Contact landlord
- Prepaid rent
- Contact landlord
Location